Installation and commissioning of permanent magnet coupling
2026-03-09 14:19Permanent magnet coupling are a type of coupling that transmits torque contactlessly via magnetic force.

Due to Permanent magnet coupling' structural and operational characteristics, certain safety risks exist during installation and commissioning.
To ensure standardized installation, reliable operation and personnel safety, all relevant requirements must be strictly observed and careful operation is required during the work.
The following text details the pre-installation preparation, installation precautions, commissioning procedures and safety specifications for permanent magnet coupling, for reference by on-site operators.
Special warning:
(1)Exposed moving parts may cause injury: Do not touch any part of your body with moving parts during operation.
(2)The heated parts may cause burns. During maintenance, the newly stopped permanent magnetic coupling may generate heat. Wear heat resistant gloves when contacting it.
The magnet parts may cause injury:
(3)During maintenance, iron containing metals will be strongly absorbed by magnets and difficult to separate. Keep copper rotor parts, tools, bolts and other metal parts away from magnets. Magnetic storage media (loose disks, credit cards, etc.) may lose data or even be damaged when they are close to magnets. Mobile phones, watches, instrument remote controls, CD players, DVD players, etc. are vulnerable when they are close to magnets.
(4)Magnets can cause cardiac pacemakers, electronic medical devices to malfunction or reset to factory settings. Personnel with these medical devices must keep a safe distance of more than 2 meters when disassembling the permanent magnetic couplings.
1. Installation Instructions
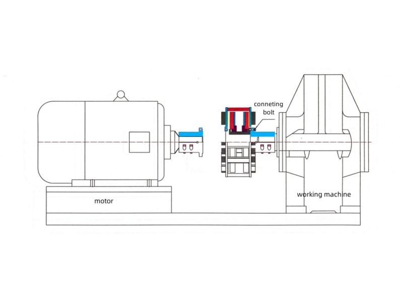
(1) As shown in Fig.1, unscrew the connecting bolts and remove the motor and working machine side hub.

Fig. 1
(2) As shown in Fig.2, install the coupling onto the motor and the working machine respectively, and then tighten the fixing bolts.

Fig. 2
(3) As shown in Fig. 3, lift the permanent magnetic coupling to the working machine end, align it with the inner step positionof the hub, and tighten the connecting bolts.

Fig. 3
(4) As shown in Fig.4, move the motor (the permanent magnetic couplings can also be adjusted radially at the same time), align the locating spigot of the hub, and tighten the connecting bolts.

Fig. 4
(5) As shown in Fig.5, rotate the regulating bolt of the permanent magnetic coupling until the air gap at both ends is basically the same, then slightly tighten the motor anchor bolt, unscrew the regulating bolt of the permanent magnetic coupling, adjust the motor regulating bolt to make the air gap at both ends basically consistent with the circular reference plane, and finally tighten the motor anchor bolt.

Fig.5
Bolt strength grade | yield strength N/mm2 | Bolt size | |||||
M10 | M12 | M14 | M16 | M18 | M20 | ||
8.8 | 640 | Tightening torque Nm | |||||
46-59 | 78-104 | 124-165 | 193-257 | 264-354 | 376-502 | ||
2. Inspection items after installation
(1) Check whether the connecting bolts and tension bolts of the permanent magnet coupling at both ends are tightened.
(2) Rotate the permanent magnet coupling manually to check whether there is any contact between the magnet rotor and the conductor rotor during relative operation, and visually check whether the gap is even.
3. Operating Instructions
(1) The connecting hub at both ends of the permanent magnet coupling shall be fastened on the motor shaft and the equipment shaft respectively. No looseness is allowed.
(2) If the permanent magnet and the copper rotor are found to be attracted together during operation, stop the machine immediately, adjust the air gap of the magnet and the copper rotor, and check and strengthen the set connecting and fixing bolts at both ends of the permanent magnet coupling.
(3) Check the appearance every day for abnormal vibration and noise.
(4) Check whether all bolts are loose every six months.
(5) Check whether the motor or load equipment has axial string movement every year (the axial string movement of the motor and load equipment is less than 0.8 mm).
(6) Check the air gap setting value every year, record the maximum and minimum air gaps set in the original installation, and check the air gap value with a feeler gauge every year.